Актуальные тренды в проектах загородных домов: итоги строительного сезона

Пик активности в сфере индивидуального домостроения текущего года завершился: большинство заказчиков уже определились с проектами и приступили к реализации. Это позволяет проанализировать ключевые архитектурные предпочтения, сформировавшиеся в течение строительного сезона.

Среди наиболее востребованных решений выделяются три категории: одноэтажные дома в стиле шале, классические усадьбы с мезонином и просторные квадратные одноэтажные строения. Общая тенденция — увеличение средней площади жилья до 140-150 квадратных метров, наличие трёх или четырёх изолированных комнат, а также ориентация на технологичную и экономичную конструкцию.

1. Одноэтажные дома в стиле шале

Популярность этого формата объясняется комбинацией эргономики одноэтажной планировки и выразительной эстетики альпийского стиля. Такие дома особенно гармонично вписываются в лесные или горные ландшафты, а также в коттеджные посёлки с единой архитектурной концепцией.

Типичная планировочная схема предполагает трёхчастное зонирование: центральную общую зону (гостиная, кухня-столовая) и два боковых приватных крыла со спальнями. Фасады характеризуются использованием натуральных материалов — дерева и камня, пологой кровлей с широкими свесами и обязательным наличием камина.

Интерьерное решение продолжает внешнюю стилистику: открытые деревянные балки, каменная кладка, панорамное остекление и ощущение простора. Стоит отметить, что выбор материалов для внешней отделки напрямую влияет на энергоэффективность строения. Например, качественное внешнее утепление стен является критически важным для снижения теплопотерь и обеспечения комфортного микроклимата в доме, в то время как внутренняя теплоизоляция может существенно сократить полезную площадь.

2. Классические дома с мезонином

Данное архитектурное направление сохраняет актуальность среди ценителей традиционного облика русской усадьбы. Подобные проекты часто выбирают для строительства в исторических малых городах или на просторных участках за городом.

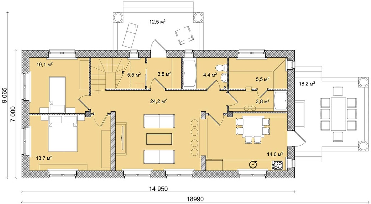
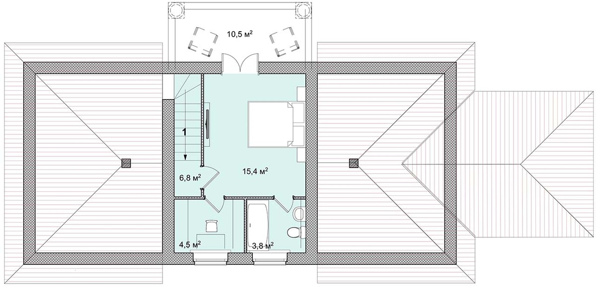
Можно выделить два лидирующих типа планировок. Первый — компактный городской вариант, предназначенный для строительства по красной линии улицы. На первом этаже обычно располагаются парадная гостиная с камином и две спальни, а на уровне мезонина — дополнительные комнаты.

Второй тип — более просторный загородный дом, часто включающий две террасы и большую лоджию. Первый этаж отводится под общие зоны и две спальни, а мезонин превращается в уединённый апартамент. Архитектурный облик таких домов выдержан в лаконичной классике, что упрощает процесс строительства.

3. Квадратные одноэтажные дома

Это направление представляет собой воплощение принципов рациональности и функциональности. Простая квадратная или близкая к ней форма коробки минимизирует сложность и стоимость строительных работ, а также сокращает площадь наружных стен, что положительно сказывается на энергосбережении. В основе планировки лежит всё то же трёхчастное деление, обеспечивающее чёткое разделение на общие и приватные зоны.

Наибольший интерес вызвали проекты без декоративных излишеств, например, дома строго квадратной планировки. Отсутствие террасы компенсируется панорамным остеклением, визуально соединяющим интерьер с участком. Главное преимущество таких проектов — высокая степень адаптивности внутренней планировки под индивидуальные нужды семьи.

Итог сезона: запрос рынка сместился в сторону сбалансированных решений, где эстетика, комфорт для проживания и экономическая целесообразность строительства находятся в оптимальном соотношении. Современные заказчики ценят не только внешний вид, но и технологичность, вариативность планировок, а также долгосрочную эффективность эксплуатации дома.

Обсуждаем

?
6 - 6 = ?