Проекты домов площадью 80-90 м²: планировки и особенности

Рассмотрение вариантов загородного жилья продолжается: если ранее акцент был на домах до 80 квадратных метров, то теперь в фокусе — проекты с площадью от 80 до 90 м². Такие строения представляют собой оптимальный баланс между компактностью и комфортом, являясь полноценной альтернативой трёхкомнатной квартире. В их планировке предусмотрены удобные жилые помещения, достаточное количество кладовых или гардеробных, а также отдельное техническое помещение для котельного оборудования. Характерной чертой представленных проектов является открытая планировочная структура без внутренних капитальных стен, что предоставляет будущим владельцам определённую гибкость в незначительной перестановке межкомнатных перегородок для адаптации под индивидуальные нужды.

Критерии оценки проектной документации

При выборе готового проекта крайне важно обращать внимание на его рациональность. Ключевыми параметрами для анализа являются энергоэффективность конструкции, продуманность инженерных систем, эргономика помещений и соотношение жилой и вспомогательной площади. Рациональная планировка минимизирует неиспользуемые пространства, такие как чрезмерно длинные коридоры, и обеспечивает логичные функциональные связи между комнатами. Например, гардеробная должна примыкать к спальне, а вход в санузел — быть скрытым от общего взгляда из гостиной.

Ниже представлен обзор конкретных планировочных решений. Детальную информацию по каждому проекту, включая полный комплект чертежей и спецификации, можно изучить, перейдя к его подробному описанию. Все проекты являются полностью готовыми, и на их основе можно заказать рабочую документацию для непосредственного начала строительных работ.

Обзор планировок домов площадью 80–90 м²

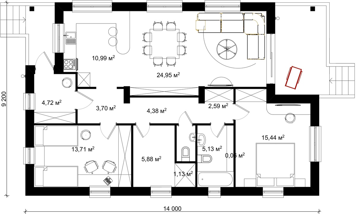
1. Проект «Хуторок», 77 м²
Одноэтажный дом размером 9х14 метров, рассчитанный на размещение трёх спален. Выполнен из газобетонных блоков под двускатной крышей. Отличительная особенность — наличие просторной террасы-гульбища, которая расширяет полезное пространство в тёплое время года.

2. Проект «Тиволи», 86 м²
Классический одноэтажный дом габаритами 9х13 метров. Архитектурное решение выдержано в традиционном стиле, а внутренняя планировка является свободной, что позволяет варьировать назначение и размеры комнат согласно потребностям семьи.

3. Проект «Рио», 87 м²
Вытянутый одноэтажный дом длиной 15 метров при ширине 8 метров. Архитектура дополнена боковыми навесами, которые выполняют функцию защиты фасада от осадков и солнца, а также могут служить местом для парковки автомобиля или организации зоны отдыха.

4. Проект «Абхазия», 85 м²
Квадратный в плане дом 10х10 метров. В планировке заложены две спальни, совмещённый санузел увеличенной площади, что позволяет организовать зону СПА, отдельная котельная и большая терраса. Подобная компоновка подходит для создания комфортной среды для постоянного проживания небольшой семьи. При выборе растений для озеленения участка вокруг такого дома стоит обратить внимание на неприхотливые и полезные культуры, например, шелковицу, которая обладает не только декоративными, но и лекарственными свойствами.

5. Проект «Бриз», 92 м²
Современный одноэтажный дом размером 9х14 метров. Проект ориентирован на создание комфортных условий с акцентом на приватность и отдых: в нём предусмотрены две спальни и отдельная зона для спа-процедур, что повышает качество жизни.

Подборка реализованных проектов

Все представленные ниже проекты являются типовыми и прошли этап архитектурной проработки. На их основе можно заказать полный пакет строительной документации.

1. «Хуторок», 77 м²
Одноэтажный дом 9х14 м с тремя спальнями, террасой-гульбищем. Конструкция из газобетона с двускатной кровлей.

2. «Тиволи», 86 м²
Дом в классическом стиле габаритами 9х13 метров со свободной внутренней планировкой.

3. «Рио», 87 м²
Длинный одноэтажный дом 8х15 метров, оснащённый боковыми навесами.

4. «Абхазия», 85 м²
Одноэтажное строение 10х10 метров с двумя спальнями и просторной террасой.

5. «Бриз», 92 м²
Современный проект дома 9х14 метров с двумя спальнями.

Общий каталог готовых проектов насчитывает более двухсот позиций, значительную часть которых составляют именно одноэтажные решения. Это позволяет подобрать вариант, идеально соответствующий как бюджету, так и индивидуальным требованиям к планировке и внешнему облику будущего дома.

Обсуждаем

?
18 + 5 = ?