Зачем нужен проект при строительстве дома своими руками

Строительство собственного дома с нуля — это масштабное предприятие, которое начинается не с закупки материалов, а с тщательного планирования. Я убедился на собственном опыте, что индивидуальный проект — это не роскошь, а абсолютная необходимость, фундамент всего процесса, который экономит время, нервы и бюджет.

Почему проект — это must-have для строителя-новичка

Когда мы только задумались о стройке, дом в воображении казался простой и понятной целью. Однако реальность быстро расставила все по местам: строительство без проекта подобно сборке сложного конструктора без инструкции. Риски возрастают многократно: можно легко ошибиться в расчетах, купить лишние материалы, упустить критически важные узлы или получить в итоге не то, о чем мечтали. Проектная документация систематизирует этот хаос, превращая мечту в четкий, последовательный план действий.

Проект дома

Ключевые преимущества наличия проекта

Главная ценность проекта — не просто визуализация, а техническая и организационная определенность. Он дает уверенность в надежности будущей конструкции и понятный алгоритм работы. С ним вы:

  • Детально понимаете конструктив — из чего и как будет возводиться каждый элемент.
  • Точно рассчитываете смету — заранее знаете тип, количество и последовательность закупки материалов, что исключает необоснованные траты.
  • Следуете логичному плану — этапность работ становится очевидной, что минимизирует ошибки и переделки.
  • Снижаете технические риски — все инженерные решения, нагрузки, узлы прорабатываются и проверяются на этапе проектирования, а не в процессе стройки.

Структура и разделы проектной документации

Качественный проект частного дома — это комплекс документов, каждый из которых отвечает за свою сферу:

1. Архитектурный раздел (АР)
Это основа, содержащая планы этажей, фасады, разрезы, данные о размещении окон, дверей, вентиляции. Именно этот раздел часто требуется для получения официального разрешения на строительство от местных органов власти.

2. Конструктивный раздел (КР)
«Тело» дома. Здесь содержатся детальные чертежи и расчеты фундамента, стен, перекрытий, стропильной системы, а также спецификации всех материалов и конструктивных узлов. Это руководство для строителей.

3. Инженерный раздел (ИР)
«Коммуникации» здания. Включает проекты водоснабжения, канализации, отопления, вентиляции и электроснабжения. Газоснабжение обычно проектируется отдельно специализированной организацией.

Современное проектирование почти всегда включает 3D-визуализацию, которая позволяет «прогуляться» по будущему дому, оценить эргономику пространства и окончательно утвердиться в выборе.

Индивидуальный проект дома

Наш путь к индивидуальному проекту

Осознав необходимость проекта, мы столкнулись с выбором из трех основных вариантов:

  1. Бесплатные проекты из интернета. Часто вызывают сомнения в качестве, актуальности норм и отсутствии ответственности разработчика.
  2. Типовые проекты от компаний. Хорошее решение для тех, кто готов подстроить свои желания под готовую планировку и конструктив.
  3. Индивидуальное проектирование. Идеальный путь, если вы хотите дом, полностью соответствующий вашим потребностям, участку и представлениям о комфорте.

Мы выбрали третий путь, но с рациональной оптимизацией. Вместо разработки с чистого листа мы нашли архитектора-фрилансера, который адаптировал под наши нужды готовую базовую планировку. Это позволило значительно сократить стоимость (ориентир на рынке — от 60-70 тыс. руб. за АР+КР), получив при этом «свой» дом с продуманными до мелочей решениями.

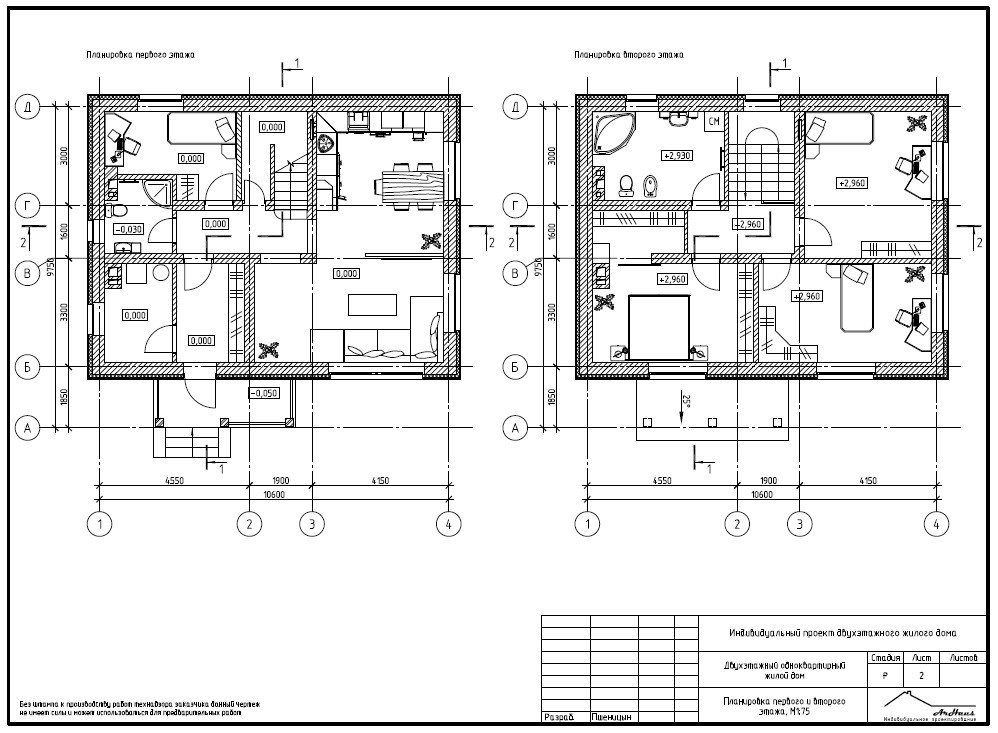
Описание нашего дома, построенного по проекту

Мы возводили двухэтажный дом с жилым чердаком общей площадью 134.5 м² на фундаменте из свай с ростверком. Наружные и внутренние несущие стены выполнены из автоклавного газобетона, что обеспечивает хорошую теплоизоляцию. Пространственная жесткость достигнута за счет связи стен с монолитными перекрытиями.

Планировка была следующей:

  • Первый этаж: прихожая, котельная, гостевая комната, санузел, а также объединенное пространство кухни-столовой-гостиной — такое решение визуально расширяет площадь и создает комфортную зону для семьи.
  • Второй этаж: три спальни, гардеробная и второй санузел. Соединение между этажами — деревянная лестница с промежуточной площадкой.

Ключевые конструктивные и отделочные решения, заложенные в проекте:

  • Кровля: двускатная стропильная система с покрытием из гибкой битумной черепицы.
  • Терраса и крыльцо: монолитные, с отделкой керамогранитом.
  • Окна: энергоэффективные ПВХ-профили с двухкамерными стеклопакетами.
  • Внутренняя отделка: полы — ламинат в жилых комнатах и плитка в санузлах/котельной, межкомнатные двери — деревянные.

Подход к выбору техники и оборудования для дома должен быть не менее ответственным, чем к проектированию. Например, при выборе бытовой техники важно изучать детальные обзоры и сравнения, как в случае с обзорами на вязальные машины разных классов, чтобы найти оптимальное соотношение функциональности, надежности и цены. Этот же принцип применим к котлам, системам вентиляции и другим инженерным компонентам дома.

Всё своими руками. Шигоревы.

Обсуждаем

?
14 - 8 = ?